LOGIN
HOME
CATEGORIES
UPLOAD FILE
PRICING
HOUSE PLAN
ABOUT US
CONTACT US
Small Commercial Complex Design CAD File
Home
Categories
Architecture
Corporate Building
Small Commercial Complex Design CAD File
Uploaded by:
Rashmi
Solanki
View Profile
View Profile
Description
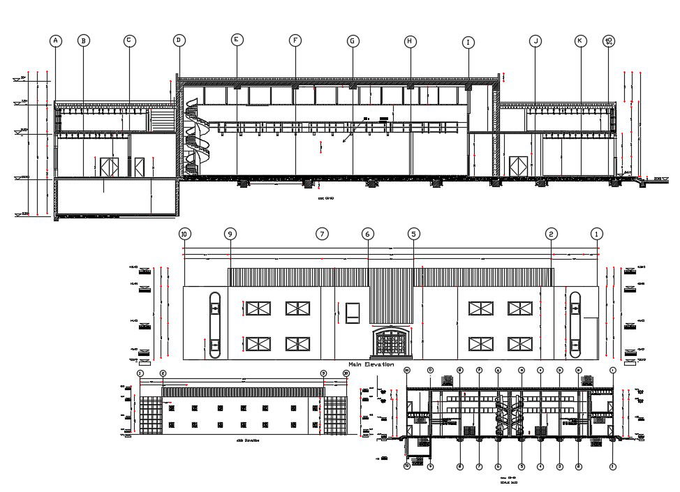
Small Commercial Complex Design CAD File; commercial complex design with elevation ,sections,level demarcation and dimension .free download
File Type:
DWG
File Size:
6.7 MB
Category::
Architecture
Sub Category::
Corporate Building
type:
Free
Uploaded by:
Rashmi
Solanki
View Profile
Download
Add to libary
find Latest
Related
Files