LOGIN
HOME
CATEGORIES
UPLOAD FILE
PRICING
HOUSE PLAN
ABOUT US
CONTACT US
Download Free AutoCAD Reception Floor
Home
Categories
Architecture
Corporate Building
Download Free AutoCAD Reception Floor
Uploaded by:
Komal
View Profile
View Profile
Description
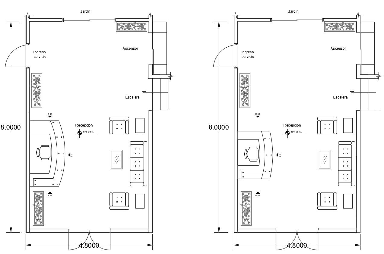
Download Free AutoCAD Reception Floor; 2d CAD drawing of the office building ground floor reception area with furniture plan.
File Type:
DWG
File Size:
4 MB
Category::
Architecture
Sub Category::
Corporate Building
type:
Free
Uploaded by:
Komal
View Profile
Download
Add to libary
find Latest
Related
Files