LOGIN
HOME
CATEGORIES
UPLOAD FILE
PRICING
HOUSE PLAN
ABOUT US
CONTACT US
Kitchen Interior Autocad File
Home
Categories
Interior Design
Kitchen Interiors
Kitchen Interior Autocad File
Uploaded by:
Komal
View Profile
View Profile
Description
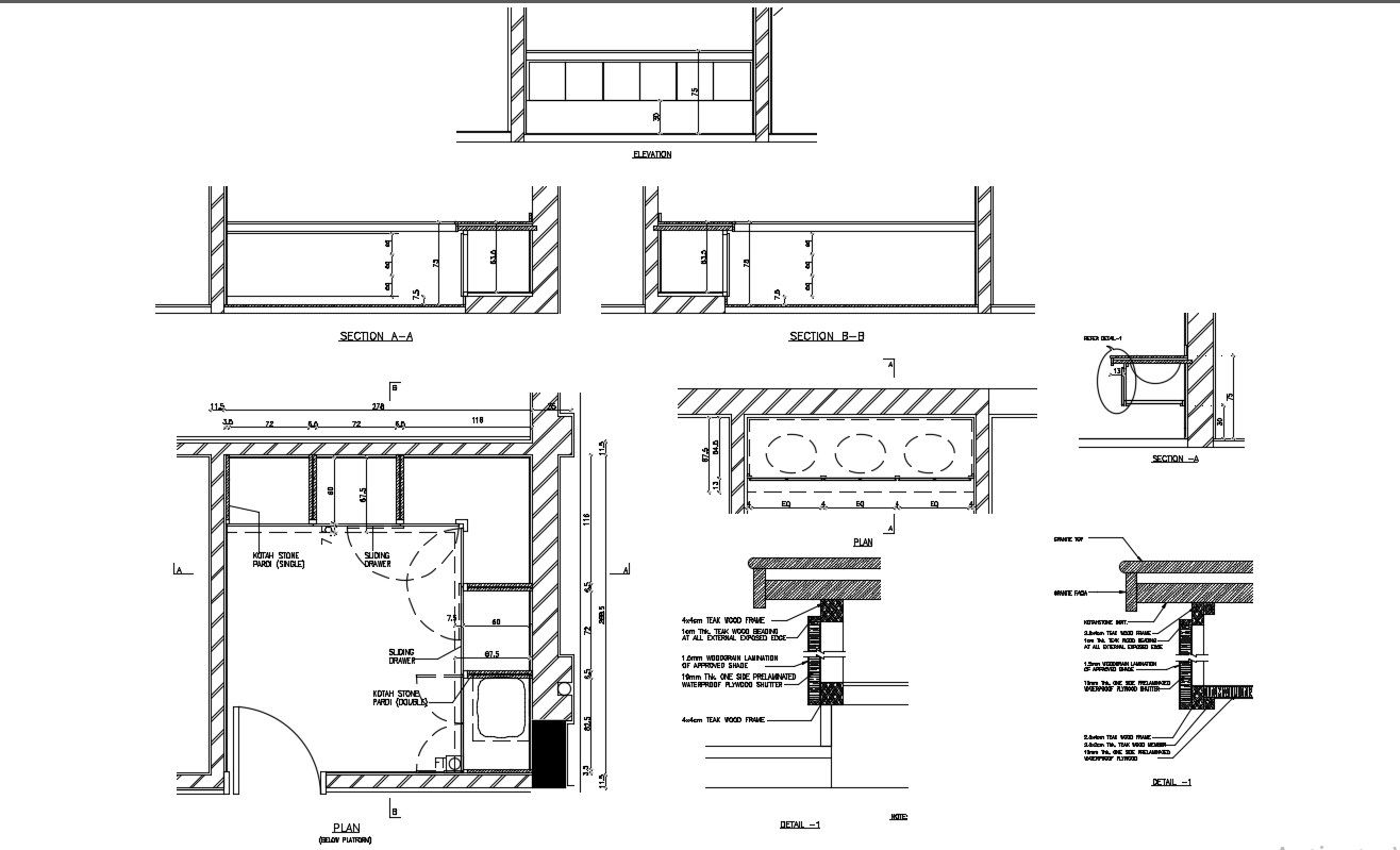
Kitchen Interior Autocad File; 2d CAD drawing of floor plan, section plan and elevation design with dimension and description detail in AutoCAD format.
File Type:
DWG
File Size:
69 KB
Category::
Interior Design
Sub Category::
Kitchen Interiors
type:
Gold
Uploaded by:
Komal
View Profile
Download
Add to libary
find Latest
Related
Files