School Planning Detail CAD Free Download

School Planning Detail CAD Free Download
Profile

Uploaded by:

Rashmi

Solanki

Description
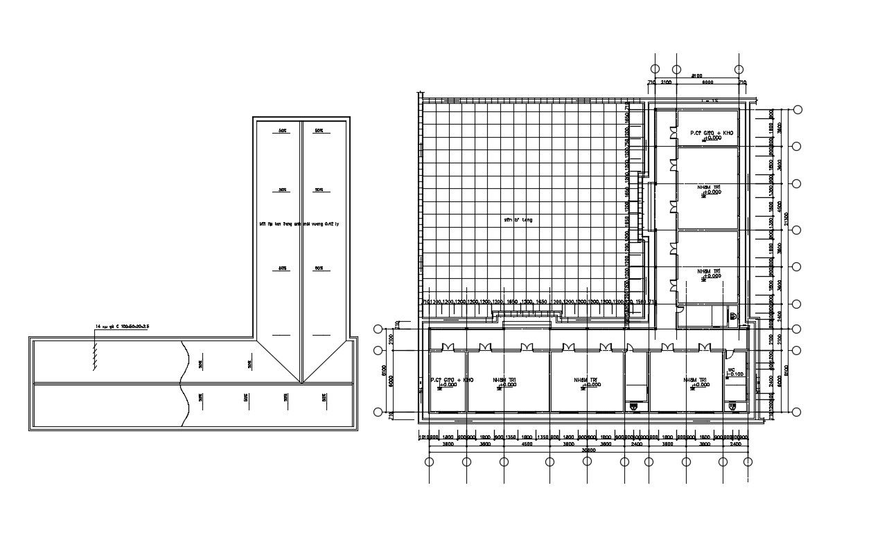
School Planning Detail CAD Free Download; detail of school construction include center line ,dimension , text ,top floor detail , floor design ,CAD Free Download
Profile

Uploaded by:

Rashmi

Solanki

find Latest

Related Files

WhatsApp Chat