Mechanical Factory Floor Plan DWG File

Mechanical Factory Floor Plan DWG File
Profile

Uploaded by:

alyssa

Acedera

Description
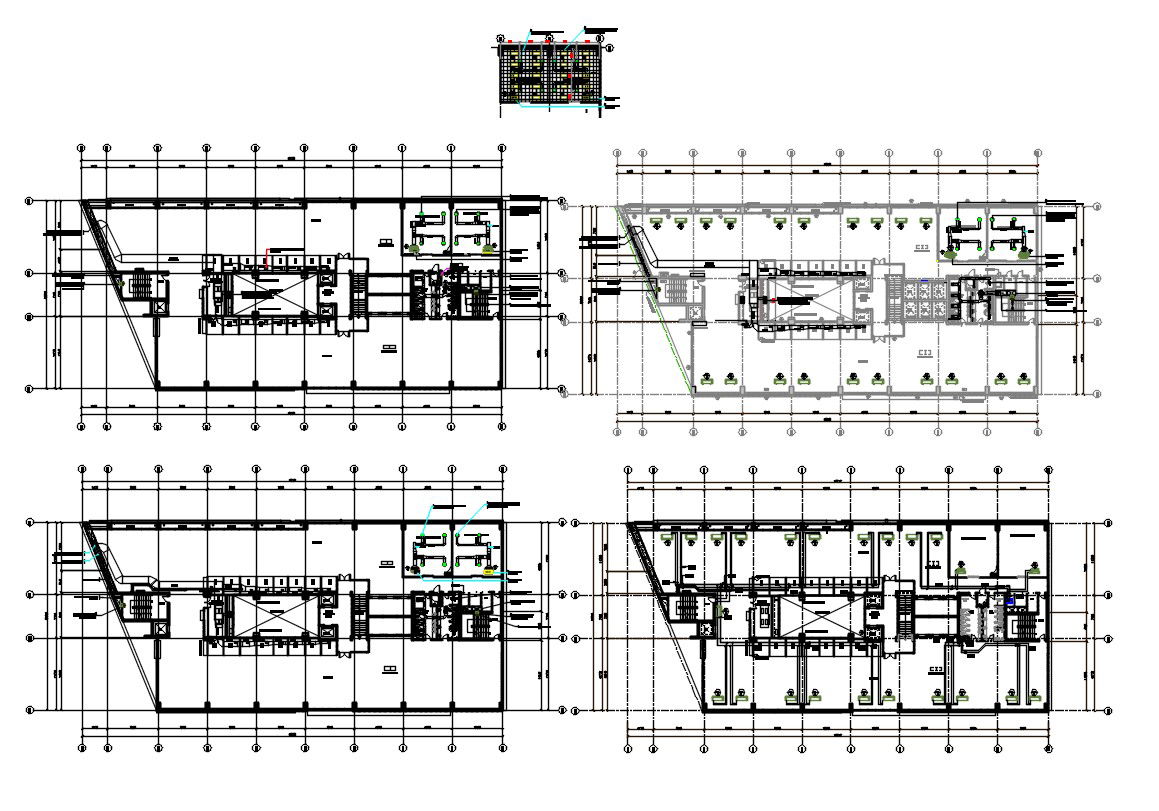
This is a mechanical detail plan of a building for construction drawings. it provide a detailed schedule and allocation. and multiple floor plan details.
Profile

Uploaded by:

alyssa

Acedera

find Latest

Related Files

WhatsApp Chat