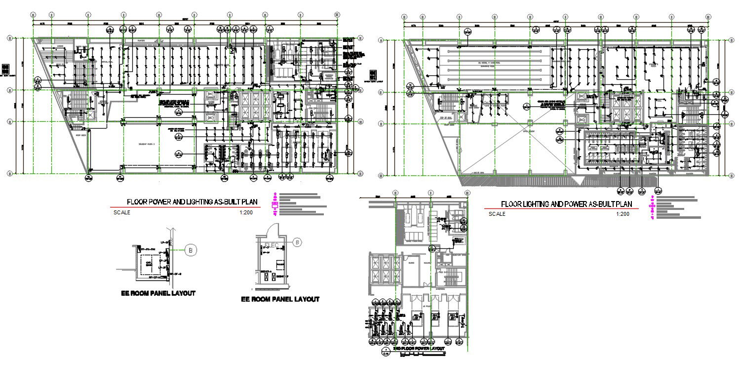
Power And Lighting Floor Plan AutoCAD File

Power And Lighting Floor Plan AutoCAD File
Profile

Uploaded by:

alyssa

Acedera

Description
Power And Lighting Floor Plan AutoCAD File; download AutoCAD file of chemical factory power and lighting floor layout plan and panel room with description details.
Profile

Uploaded by:

alyssa

Acedera

find Latest

Related Files

WhatsApp Chat