Elevation Designs For Double Floor Houses CAD File Free

Elevation Designs For Double Floor Houses CAD File Free
Profile

Uploaded by:

Rashmi

Solanki

Description
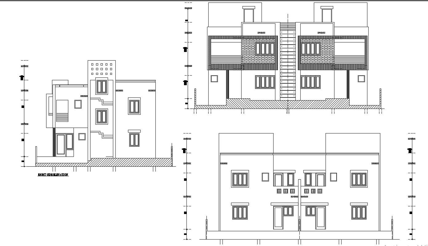
Elevation Designs For Double Floor Houses CAD File Free ; modern elevation of house with different side include leveling, hatching , DWG file .
Profile

Uploaded by:

Rashmi

Solanki

find Latest

Related Files