Bungalow Design DWG File Free

Bungalow Design DWG File Free
Profile

Uploaded by:

Rashmi

Solanki

Description
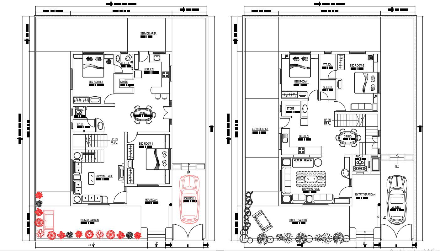
Bungalow Design DWG File Free; modern bungalow planning include furniture layout , texting , size , door window detail ,landscape detail and many more CAD file free
Profile

Uploaded by:

Rashmi

Solanki

find Latest

Related Files

WhatsApp Chat