LOGIN
HOME
CATEGORIES
UPLOAD FILE
PRICING
HOUSE PLAN
ABOUT US
CONTACT US
Hospital Floor Plan CAD Drawing Free
Home
Categories
Architecture
Hospital Projects
Hospital Floor Plan CAD Drawing Free
Uploaded by:
Rashmi
Solanki
View Profile
View Profile
Description
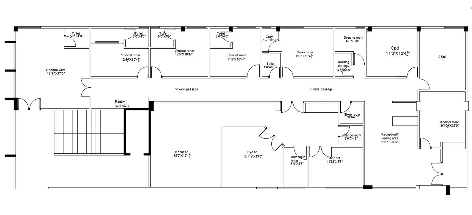
Hospital Floor Plan CAD Drawing Free ; design of hospital floor with rooms stores ,many activity rooms corridor , stair detail CAD file free .
File Type:
DWG
File Size:
98 KB
Category::
Architecture
Sub Category::
Hospital Projects
type:
Free
Uploaded by:
Rashmi
Solanki
View Profile
Download
Add to libary
find Latest
Related
Files