3 BHK Architecture House Layout Plan
Description
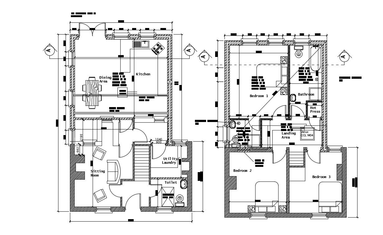
3 BHK Architecture House Layout Plan; the architecture ground floor plan and first-floor plan includes 3 bedrooms, kitchen, drawing room, dining area, utility laundry room, and bathroom with furniture layout plan and dimension details in AutoCAD format.
Uploaded by:

