Home Decor Ideas With Interior Elevation Of Internal Part CAD File Free
Description
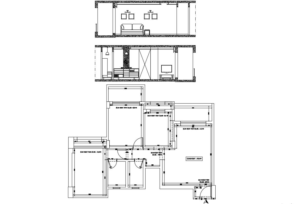
Home Decor Ideas With Interior Elevation Of Internal Part CAD File Free; detail of internal elevation and basic plan of the house for space plan for interior with working dimension, Auto CAD File Free,
Uploaded by:
Rashmi
Solanki

