LOGIN
HOME
CATEGORIES
UPLOAD FILE
PRICING
HOUSE PLAN
ABOUT US
CONTACT US
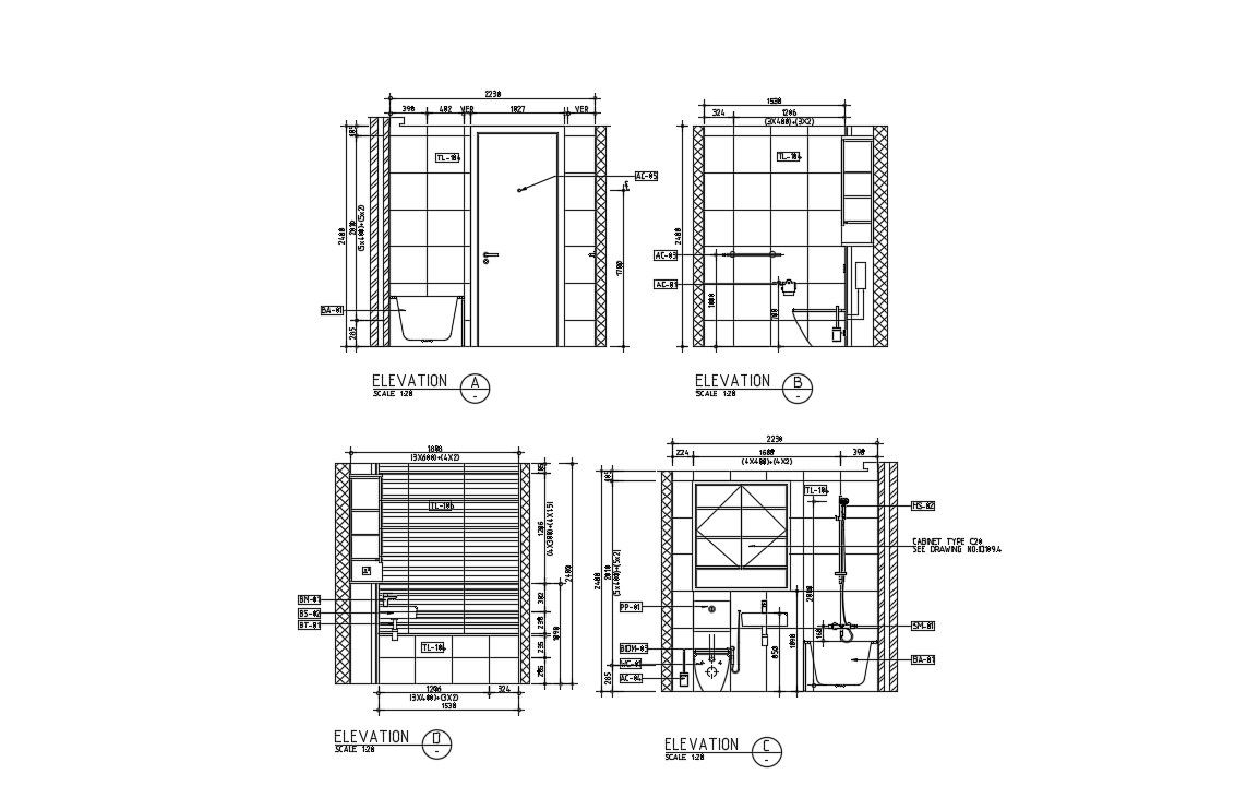
Toilet Elevation Drawing
Home
Categories
Architecture
Bathroom & Toilet Drawing
Toilet Elevation Drawing
Uploaded by:
Komal
View Profile
View Profile
Description
Toilet Elevation Drawing; 2d CAD drawing of toilet elevation design which shows water closet, washbasin, toilet, and bathtub with all dimension details.
File Type:
DWG
File Size:
1.2 MB
Category::
Architecture
Sub Category::
Bathroom & Toilet Drawing
type:
Free
Uploaded by:
Komal
View Profile
Download
Add to libary
find Latest
Related
Files