Restaurant All Floors And Elevations ,Sections Drawing CAD File
Description
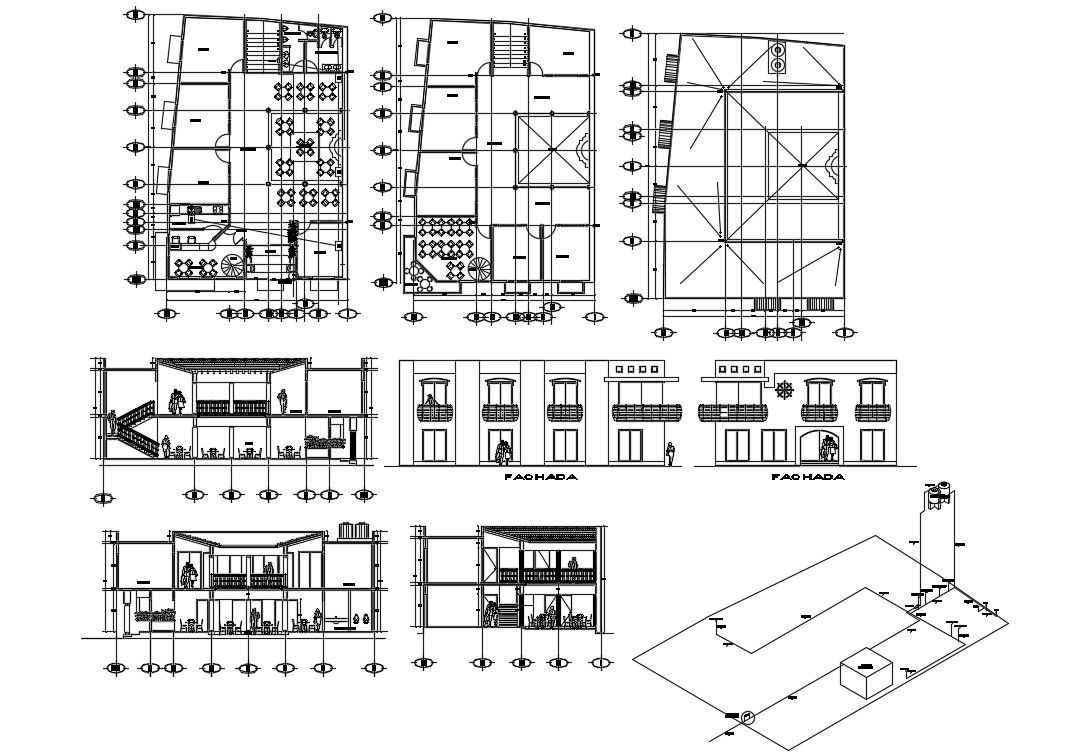
Restaurant All Floors And Elevations, Sections Drawing CAD File; construction detail of the restaurant includes all floor plans elevations, sections, working dimensions, and basic furniture layout AutoCAD file.
Uploaded by:
Rashmi
Solanki

