Modern Office Building With Furniture Drawing CAD File
Description
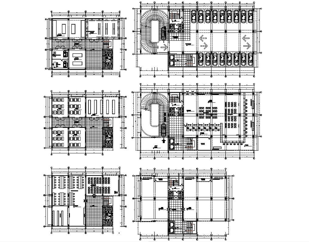
Modern Office Building With Furniture Drawing CAD File; detail of the commercial building with basic furniture layout, centerline plan, the working set also the detail of ramp, its all floor plans of commercial building DWG file
Uploaded by:
Rashmi
Solanki
