LOGIN
HOME
CATEGORIES
UPLOAD FILE
PRICING
HOUSE PLAN
ABOUT US
CONTACT US
Download Free Public Toilet DWG File
Home
Categories
Architecture
Bathroom & Toilet Drawing
Download Free Public Toilet DWG File
Uploaded by:
Komal
View Profile
View Profile
Description
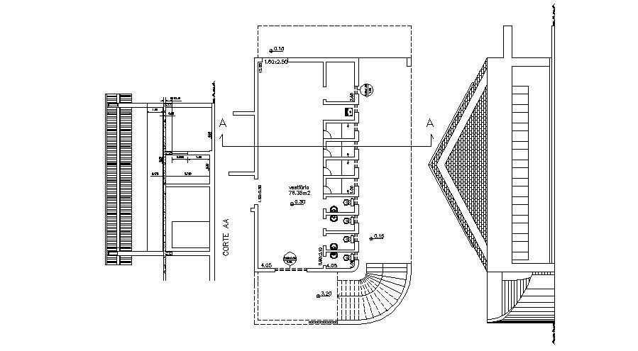
Download Free Public Toilet DWG File; 2d CAD drawing of layout plan includes sanitary detail and water closet with measurement detail.
File Type:
DWG
File Size:
339 KB
Category::
Architecture
Sub Category::
Bathroom & Toilet Drawing
type:
Free
Uploaded by:
Komal
View Profile
Download
Add to libary
find Latest
Related
Files