LOGIN
HOME
CATEGORIES
UPLOAD FILE
PRICING
HOUSE PLAN
ABOUT US
CONTACT US
Master Bedroom CAD Drawing
Home
Categories
Interior Design
Bedroom Interiors
Master Bedroom CAD Drawing
Uploaded by:
Komal
View Profile
View Profile
Description
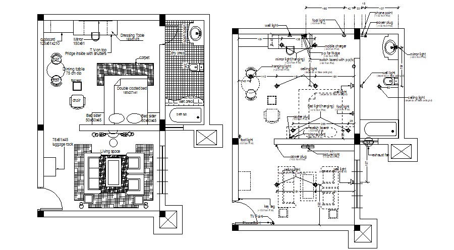
Master Bedroom CAD Drawing; the master bedroom interior design CAD drawing includes floor plan and electrical plan.
File Type:
DWG
File Size:
500 KB
Category::
Interior Design
Sub Category::
Bedroom Interiors
type:
Gold
Uploaded by:
Komal
View Profile
Download
Add to libary
find Latest
Related
Files