LOGIN
HOME
CATEGORIES
UPLOAD FILE
PRICING
HOUSE PLAN
ABOUT US
CONTACT US
Cleaning Chamber Layout Plan
Home
Categories
Electrical
House Electrical Layout
Cleaning Chamber Layout Plan
Uploaded by:
Poonam
View Profile
View Profile
Description
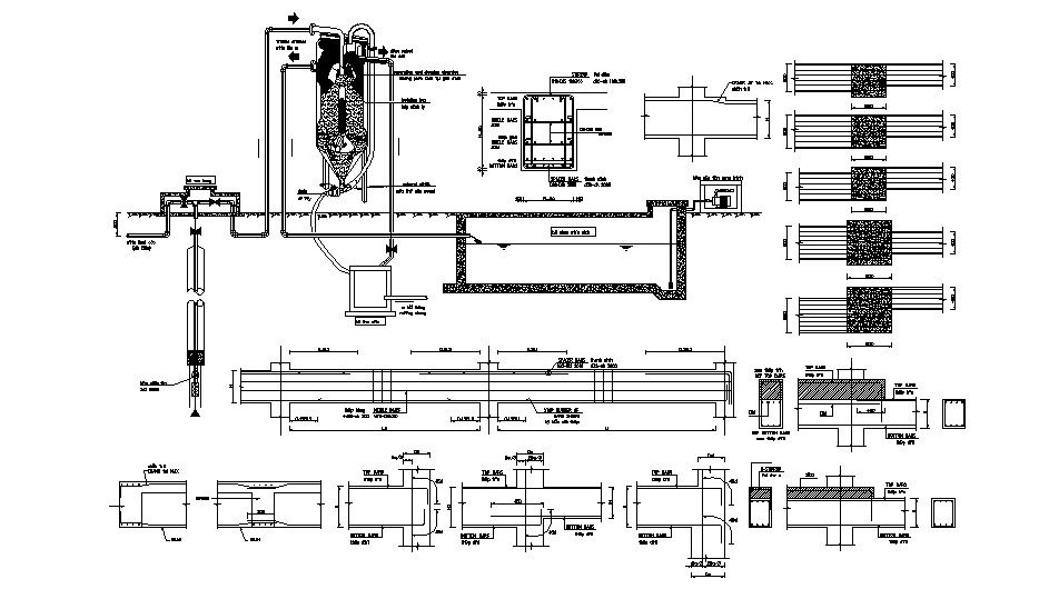
Cleaning and separator chamber; shows the details of isolation box, spaces bar, middle bars, bottom bars, top bars, and grinder. It also shows the dimension details.
File Type:
DWG
File Size:
921 KB
Category::
Electrical
Sub Category::
House Electrical Layout
type:
Gold
Uploaded by:
Poonam
View Profile
Download
Add to libary
find Latest
Related
Files