Simple Bungalow House Design AutoCAD File Free Download
Description
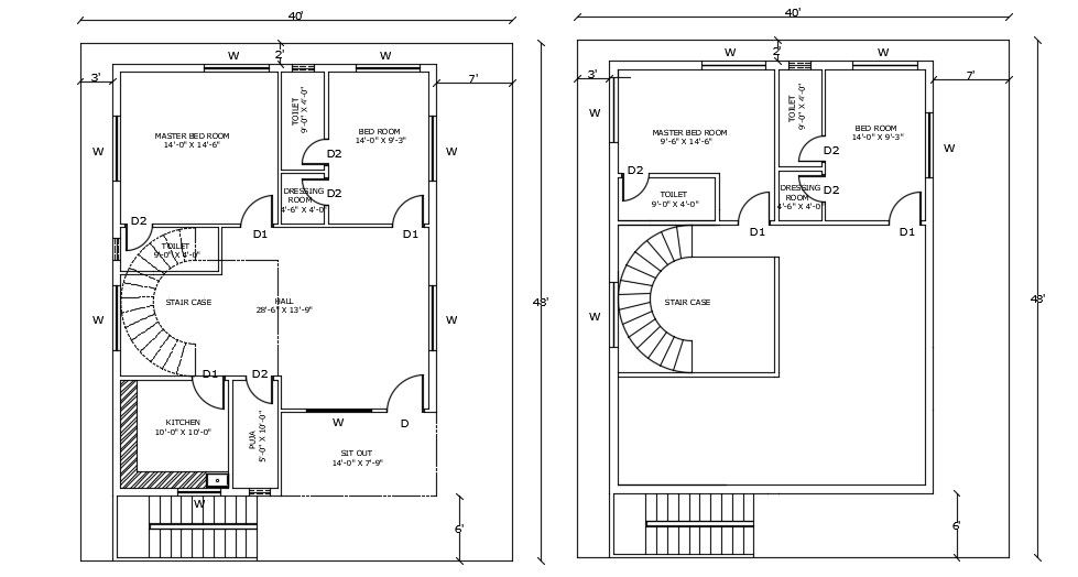
Simple Bungalow House Design AutoCAD File Free Download; detail plan of the bungalow in this bungalow provides 4 bedrooms, kitchen, dining, toilet dress, and much more detail in it CAD file free.
Uploaded by:
Rashmi
Solanki

