Modern Bungalow House Plans With Working Drawing AutoCAD File Free
Description
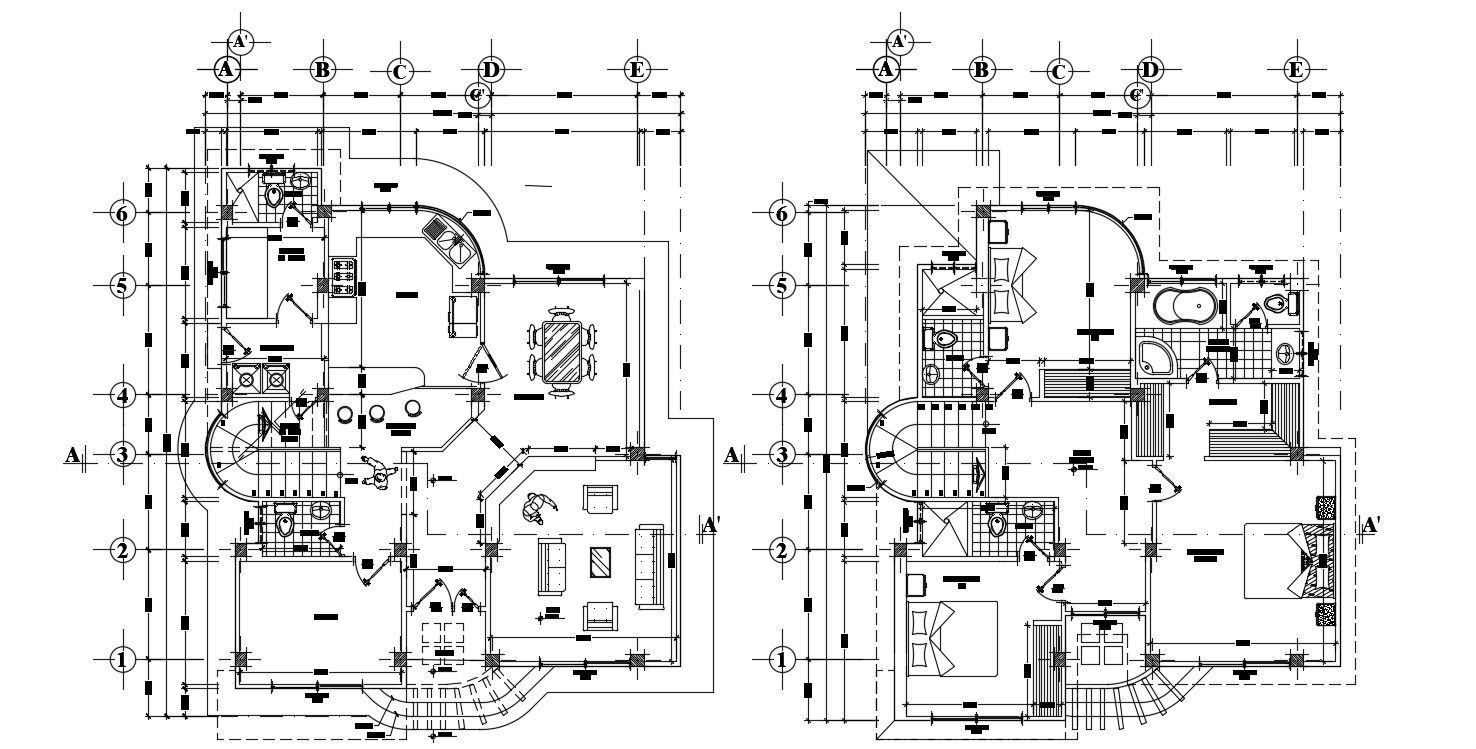
Modern Bungalow House Plans With Working Drawing AutoCAD File Free; detail plan of the bungalow with the centerline, working drawing, furniture layout, and all information related to the bungalow CAD File free.
Uploaded by:
Rashmi
Solanki

