House Section 2d CAD Drawing
Description
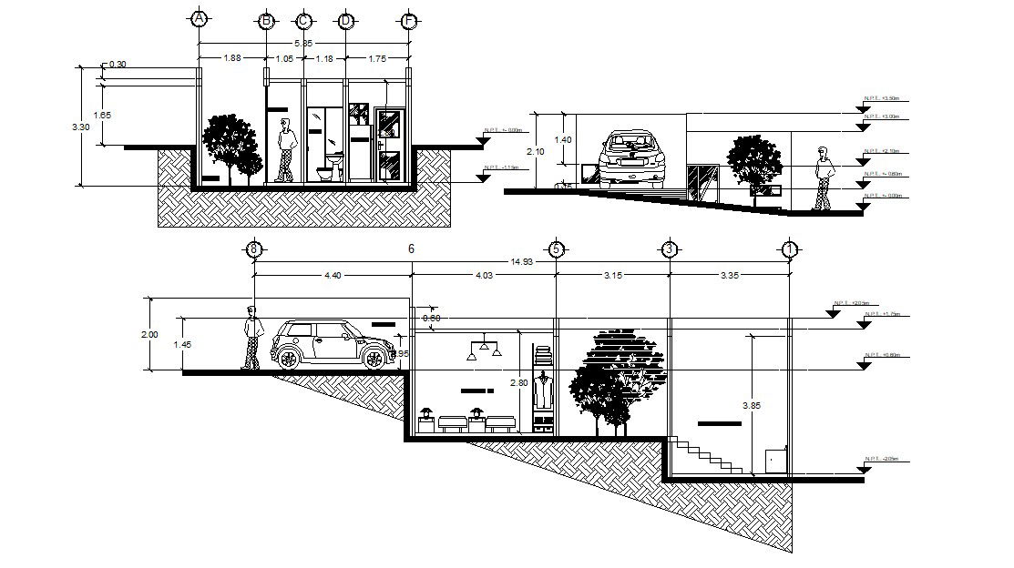
CAD drawing details of residence house section file that shows single story house design along with leveling details, building height, furniture units, and various other details.

Uploaded by:
akansha
ghatge

Uploaded by:
ghatge