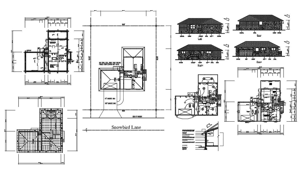
Residence Home Project DWG File
Description
Residence Home Project DWG File; 2d CAD drawing of single storey home project includes electrical plan, 2BHK layout plan, roof plan, site plan and elevation design with all dimension detail in DWG file. download CAD file and learn how to draw a house plan in AutoCAD software.
Uploaded by:

