Shop Building Working Plan CAD Drawing

Shop Building Working Plan CAD Drawing
Profile

Uploaded by:

Komal

Description
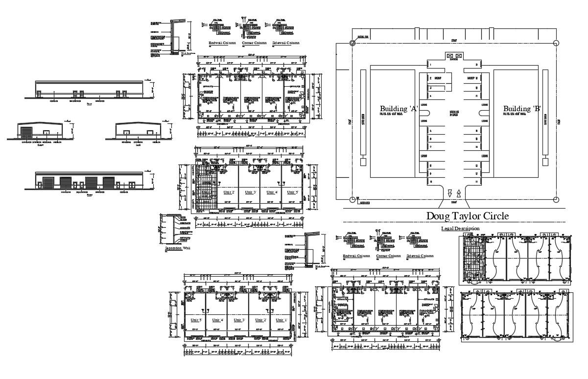
Shop Building Working Plan CAD Drawing; the architecture shop building layout plan, electrical plan, column bema plan, wall section, and elevation design with dimension detail.
Profile

Uploaded by:

Komal

find Latest

Related Files

WhatsApp Chat