LOGIN
HOME
CATEGORIES
UPLOAD FILE
PRICING
HOUSE PLAN
ABOUT US
CONTACT US
Commercial building layout in autocad
Home
Categories
Architecture
Corporate Building
Commercial building layout in autocad
Uploaded by:
K.H.J
Jani
View Profile
View Profile
Description
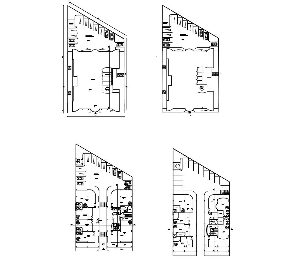
Commercial building layout in autocad it include ground floor plan,mezzanine floor,first floor layout,second floor, third floor,etc
File Type:
DWG
File Size:
427 KB
Category::
Architecture
Sub Category::
Corporate Building
type:
Gold
Uploaded by:
K.H.J
Jani
View Profile
Download
Add to libary
find Latest
Related
Files