Multi Family House Project AutoCAD File
Description
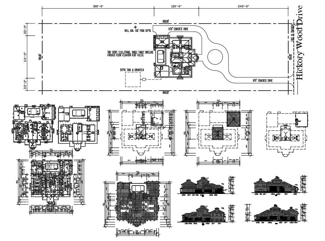
Multi Family House Project AutoCAD File; The architecture multi-family house plan CAD drawing includes floor layout plan, truss roof structure plan, elevation design, and plot area plan with all dimension detail. download DWG file and get more detail of the construction house plan.
Uploaded by:

