House Elevation Design AutoCAD Drawing
Description
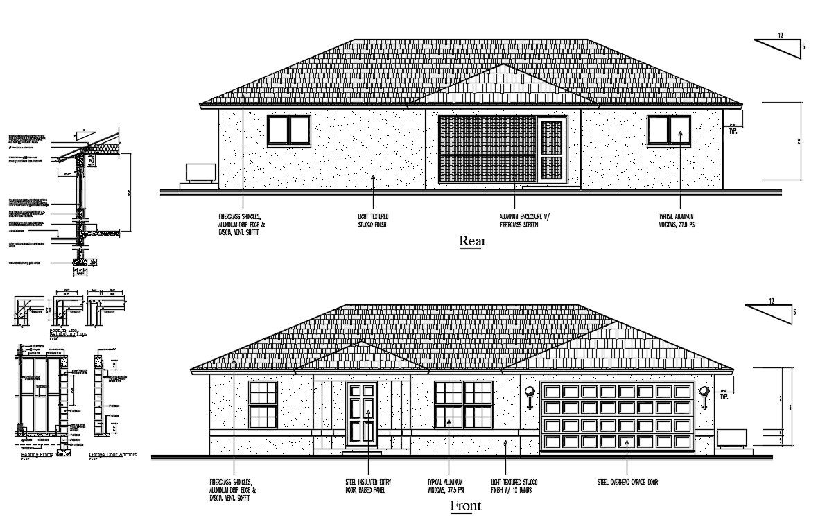
House Elevation Design AutoCAD Drawing; the single storey house front elevation and rear elevation design with wall section drawing. download AutoCAD file of house elevation CAD drawing shows clay roof, wall, door and window design.
Uploaded by:

