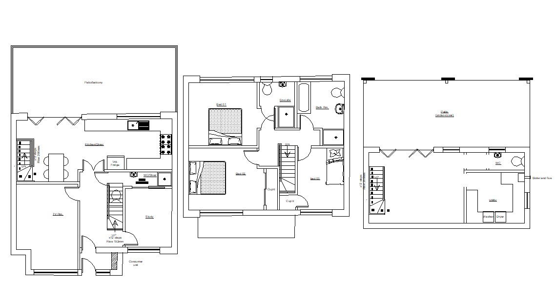
House Building Floor Plans With Basic Furniture AutoCAD File Free
Description
House Building Floor Plans With Basic Furniture AutoCAD File Free; in this drawing its all floor plan of the house includes bedrooms, kitchen, dining area, study room, toilets, and other things CAD File Free.
Uploaded by:
Rashmi
Solanki
