Hostel Room Design Plans With Basic Furniture AutoCAD File Free Download
Description
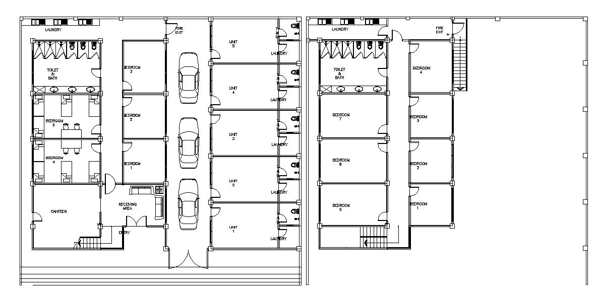
Hostel Room Design Plans With Basic Furniture AutoCAD File Free Download; this the planning of the hostel. in this planning includes rooms with furniture detail, canteen, stair, common toilet facility, laundry and other detail of hostel CAD file free.
Uploaded by:
Rashmi
Solanki
