Commercial Residential Building Designs With Working Drawing CAD File Free
Description
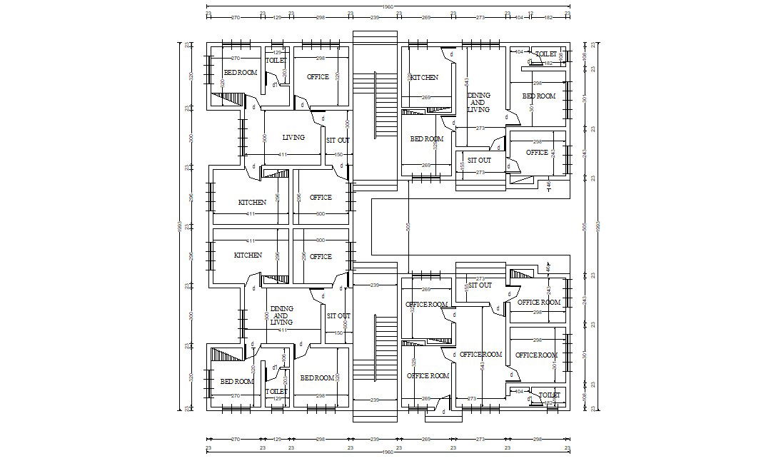
Commercial Residential Building Designs With Working Drawing CAD File Free; this is a drawing of a combination of a commercial and residential building in this plan one and two-bedroom, living room, kitchen setout, office toilets, stairs with working drawing and other details AutoCAD file free.
Uploaded by:
Rashmi
Solanki

