LOGIN
HOME
CATEGORIES
UPLOAD FILE
PRICING
HOUSE PLAN
ABOUT US
CONTACT US
Apartment Key Plan CAD File Free
Home
Categories
Urban Design
Town Design And Planning
Apartment Key Plan CAD File Free
Uploaded by:
Rashmi
Solanki
View Profile
View Profile
Description
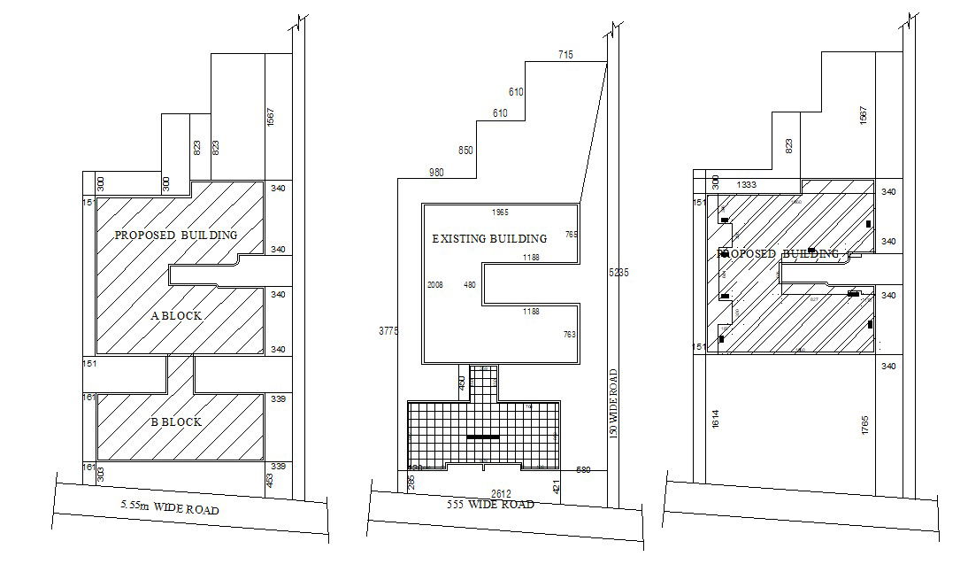
Apartment Key Plan CAD File Free; in this plan, outer line plan of the apartment, terrace pan, road marking and others detail AutoCAD File free.
File Type:
DWG
File Size:
906 KB
Category::
Urban Design
Sub Category::
Town Design And Planning
type:
Free
Uploaded by:
Rashmi
Solanki
View Profile
Download
Add to libary
find Latest
Related
Files