3 BHK Apartment Furniture Layout Plan AutoCAD File
Description
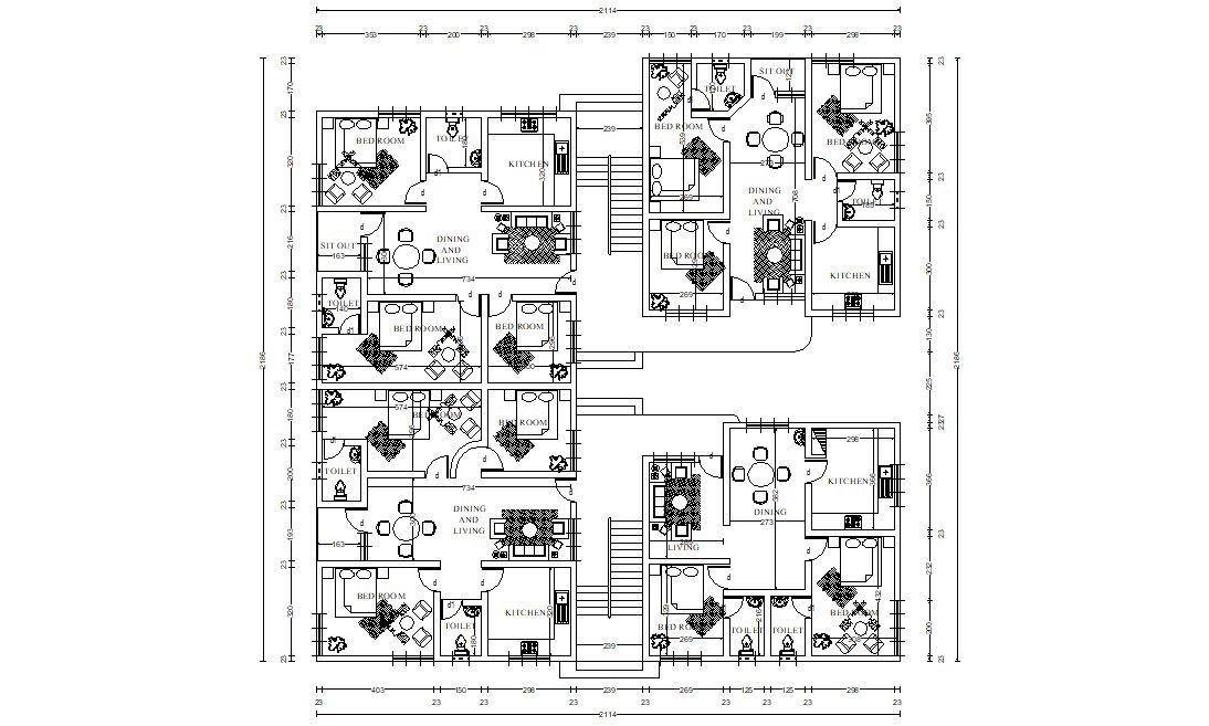
3 BHK Apartment Furniture Layout Plan AutoCAD File; The architecture apartment Layout plan CAD drawing shows 3 bhk planning of apartment, furniture layout, working drawing, dimension, and other detail CAD file.
Uploaded by:
Rashmi
Solanki
