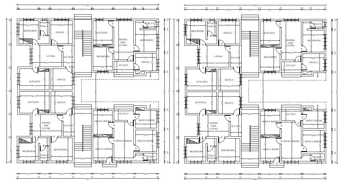
Apartment Design Plans With Basic Working Drawing AutoCAD File Free
Description
Apartment Design Plans With Basic Working Drawing AutoCAD File Free; detail of working set with all king of dimension, door window demarcation, texting, opening and other detail CAD file free.
Uploaded by:
Rashmi
Solanki

