LOGIN
HOME
CATEGORIES
UPLOAD FILE
PRICING
HOUSE PLAN
ABOUT US
CONTACT US
Godown Elevation Design DWG File
Home
Categories
Architecture
Industrial Plant
Godown Elevation Design DWG File
Uploaded by:
Komal
View Profile
View Profile
Description
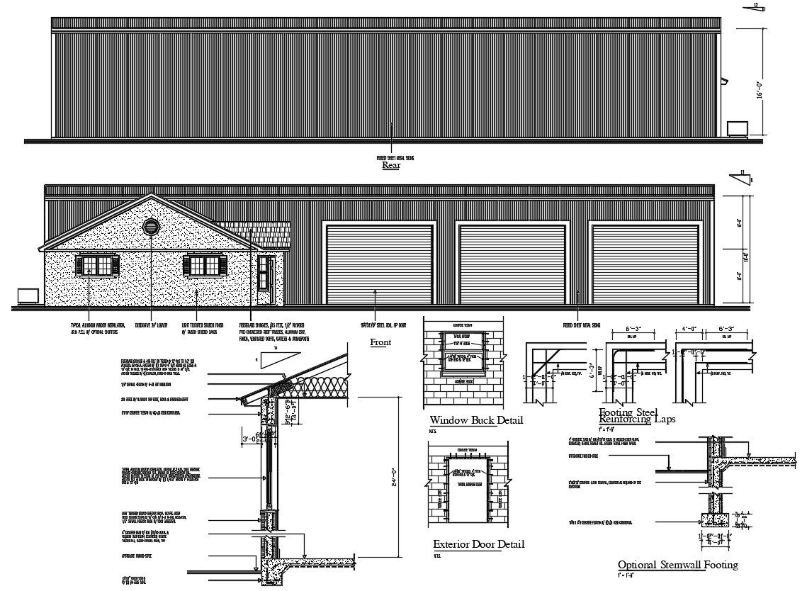
Godown Elevation Design DWG File; 2d CAD drawing of godown project stem wall footing, steel reinforcement laps, roof support wall section, and elevation design in AutoCAD format.
File Type:
DWG
File Size:
774 KB
Category::
Architecture
Sub Category::
Industrial Plant
type:
Free
Uploaded by:
Komal
View Profile
Download
Add to libary
find Latest
Related
Files