LOGIN
HOME
CATEGORIES
UPLOAD FILE
PRICING
HOUSE PLAN
ABOUT US
CONTACT US
Staircase Section AutoCAD File Free
Home
Categories
Details
Construction Details
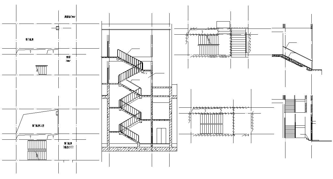
Staircase Section AutoCAD File Free
Uploaded by:
Rashmi
Solanki
View Profile
View Profile
Description
Staircase Section AutoCAD File Free; detail of stair section with the plan CAD file free.
File Type:
DWG
File Size:
175 KB
Category::
Details
Sub Category::
Construction Details
type:
Free
Uploaded by:
Rashmi
Solanki
View Profile
Download
Add to libary
find Latest
Related
Files