LOGIN
HOME
CATEGORIES
UPLOAD FILE
PRICING
HOUSE PLAN
ABOUT US
CONTACT US
Show Room Plan project DWG File
Home
Categories
Architecture
Mall & Shopping Center
Show Room Plan project DWG File
Uploaded by:
Komal
View Profile
View Profile
Description
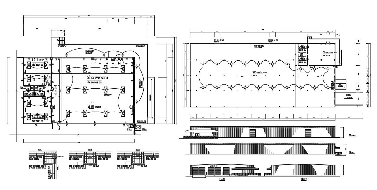
Show Room Plan project DWG File; 2d CAD drawing of showroom project includes storage warehouse, showroom, and office with ceiling false design, and elevation design.
File Type:
DWG
File Size:
291 KB
Category::
Architecture
Sub Category::
Mall & Shopping Center
type:
Gold
Uploaded by:
Komal
View Profile
Download
Add to libary
find Latest
Related
Files