LOGIN
HOME
CATEGORIES
UPLOAD FILE
PRICING
HOUSE PLAN
ABOUT US
CONTACT US
Download House Plan With Section CAD Drawing
Home
Categories
Architecture
Bungalow House Design
Download House Plan With Section CAD Drawing
Uploaded by:
Komal
View Profile
View Profile
Description
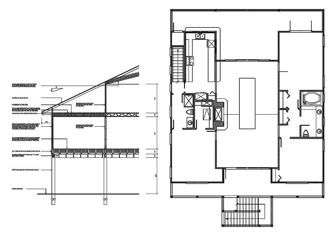
Download House Plan With Section CAD Drawing; 2d CAD drawing of house ground floor plan and roof support wall section with all description and dimension details.
File Type:
DWG
File Size:
171 KB
Category::
Architecture
Sub Category::
Bungalow House Design
type:
Free
Uploaded by:
Komal
View Profile
Download
Add to libary
find Latest
Related
Files