LOGIN
HOME
CATEGORIES
UPLOAD FILE
PRICING
HOUSE PLAN
ABOUT US
CONTACT US
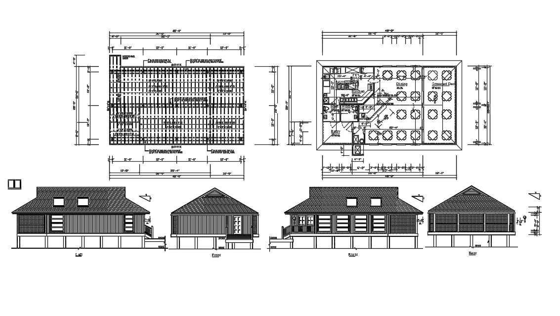
Restaurant Project AutoCAD Plan
Home
Categories
Architecture
Hotels and Restaurants
Restaurant Project AutoCAD Plan
Uploaded by:
Komal
View Profile
View Profile
Description
Restaurant Project AutoCAD Plan; 2d CAD drawing of restaurant floor plan, roof plan, and elevation design CAD drawing with dimension and description details.
File Type:
DWG
File Size:
641 KB
Category::
Architecture
Sub Category::
Hotels and Restaurants
type:
Gold
Uploaded by:
Komal
View Profile
Download
Add to libary
find Latest
Related
Files