LOGIN
HOME
CATEGORIES
UPLOAD FILE
PRICING
HOUSE PLAN
ABOUT US
CONTACT US
Commercial Building Floor Plans DWG File
Home
Categories
Architecture
Corporate Building
Commercial Building Floor Plans DWG File
Uploaded by:
Rashmi
Solanki
View Profile
View Profile
Description
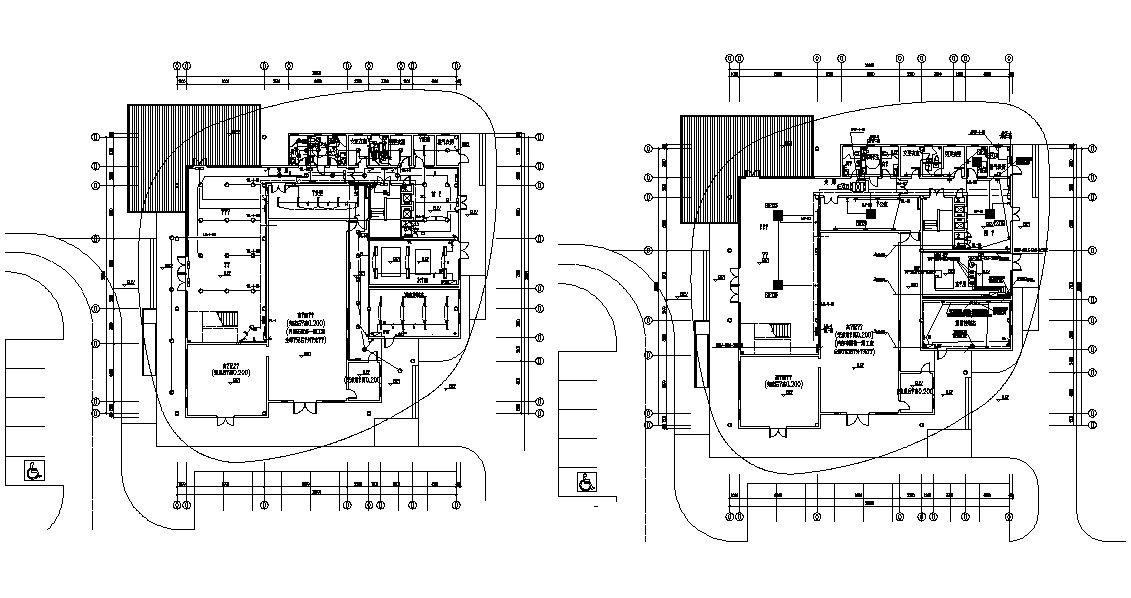
Commercial Building Floor Plans DWG File Free; commercial planning with the centerline, dimension, texting CAD file.
File Type:
DWG
File Size:
466 KB
Category::
Architecture
Sub Category::
Corporate Building
type:
Gold
Uploaded by:
Rashmi
Solanki
View Profile
Download
Add to libary
find Latest
Related
Files