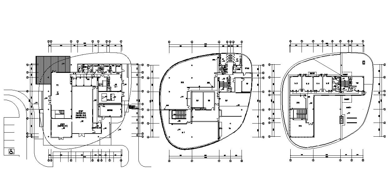
3 Storey Commercial Building Floor Plan AutoCAD File.

3 Storey Commercial Building Floor Plan AutoCAD File.
Profile

Uploaded by:

Rashmi

Solanki

Description
3 Storey Commercial Building Floor Plan AutoCAD File.all floor plan of a commercial building with dimension, centerline, texting CAD file.
Profile

Uploaded by:

Rashmi

Solanki

find Latest

Related Files

WhatsApp Chat