Commercial Building Plans And Designs AutoCAD File Free
Description
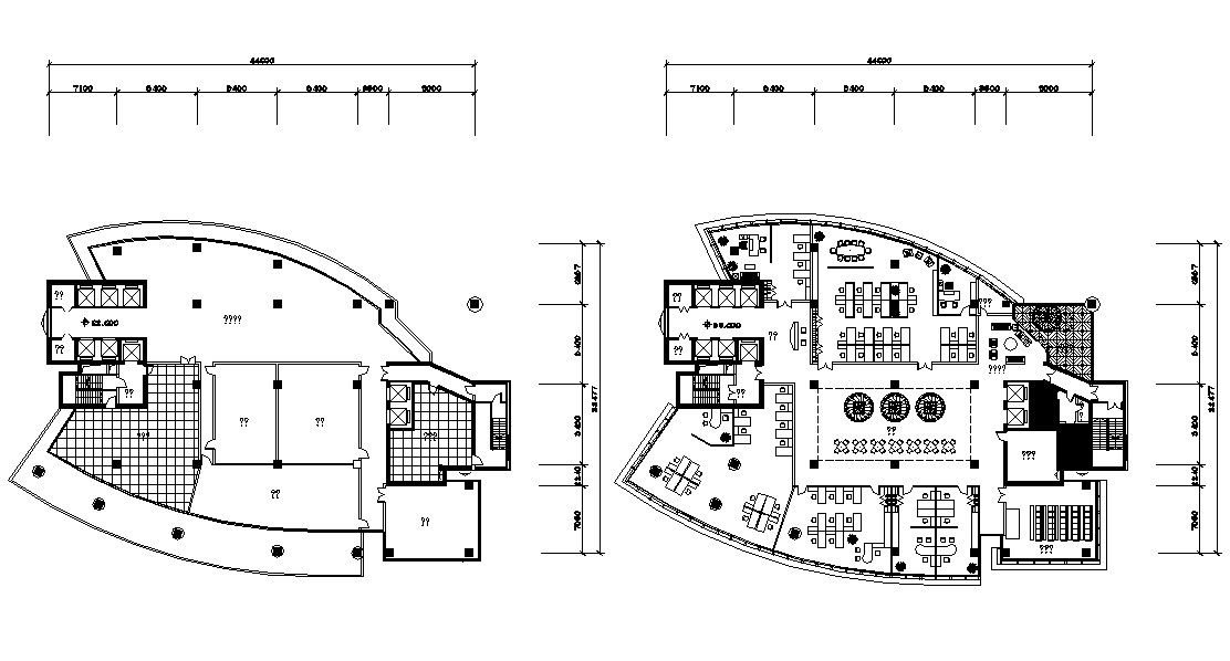
Commercial Building Plans And Designs AutoCAD File Free; design of the commercial building with furniture layout, working dimension, flooring hatching and other detail CAD file free.
Uploaded by:
Rashmi
Solanki
