LOGIN
HOME
CATEGORIES
UPLOAD FILE
PRICING
HOUSE PLAN
ABOUT US
CONTACT US
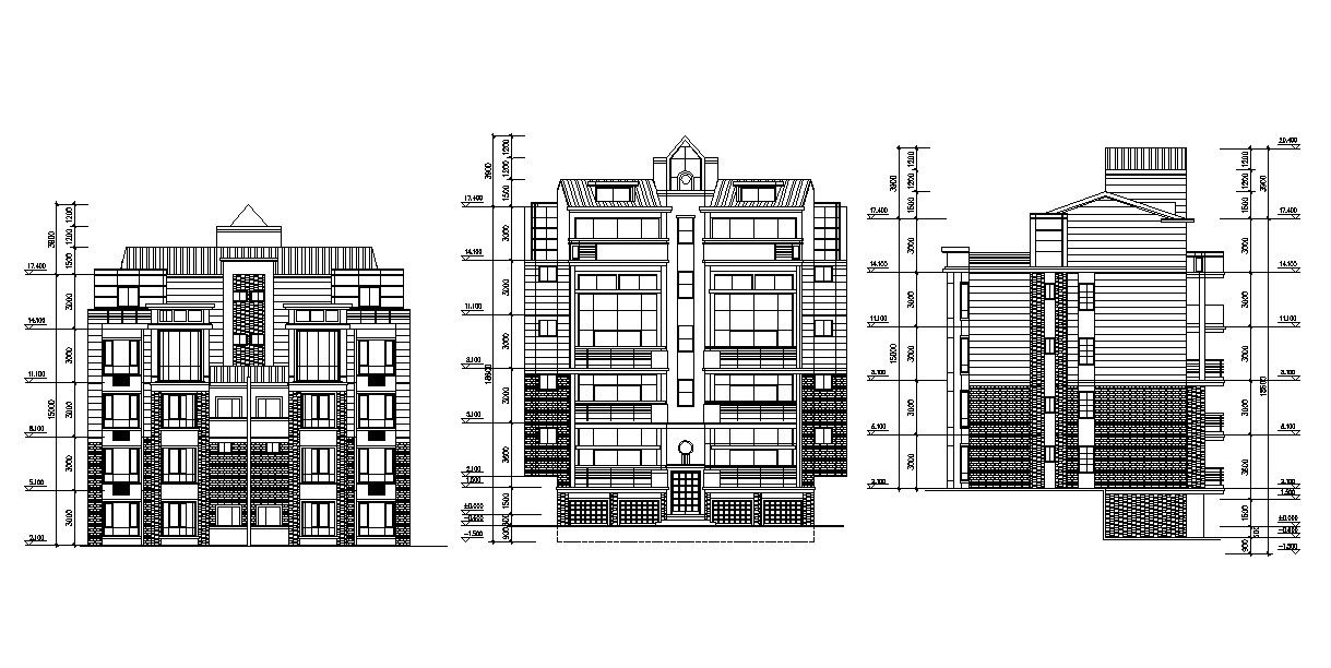
Apartment Building Elevation Drawing DWG File
Home
Categories
Architecture
Apartment Drawing
Apartment Building Elevation Drawing DWG File
Uploaded by:
Komal
View Profile
View Profile
Description
Apartment Building Elevation Drawing DWG File; 2d CAD drawing of apartment building all side elevation design shows building floor structure and dimension details.
File Type:
DWG
File Size:
237 KB
Category::
Architecture
Sub Category::
Apartment Drawing
type:
Gold
Uploaded by:
Komal
View Profile
Download
Add to libary
find Latest
Related
Files