LOGIN
HOME
CATEGORIES
UPLOAD FILE
PRICING
HOUSE PLAN
ABOUT US
CONTACT US
Building Section Details DWG File
Home
Categories
Architecture
Bungalow House Design
Building Section Details DWG File
Uploaded by:
Rashmi
Solanki
View Profile
View Profile
Description
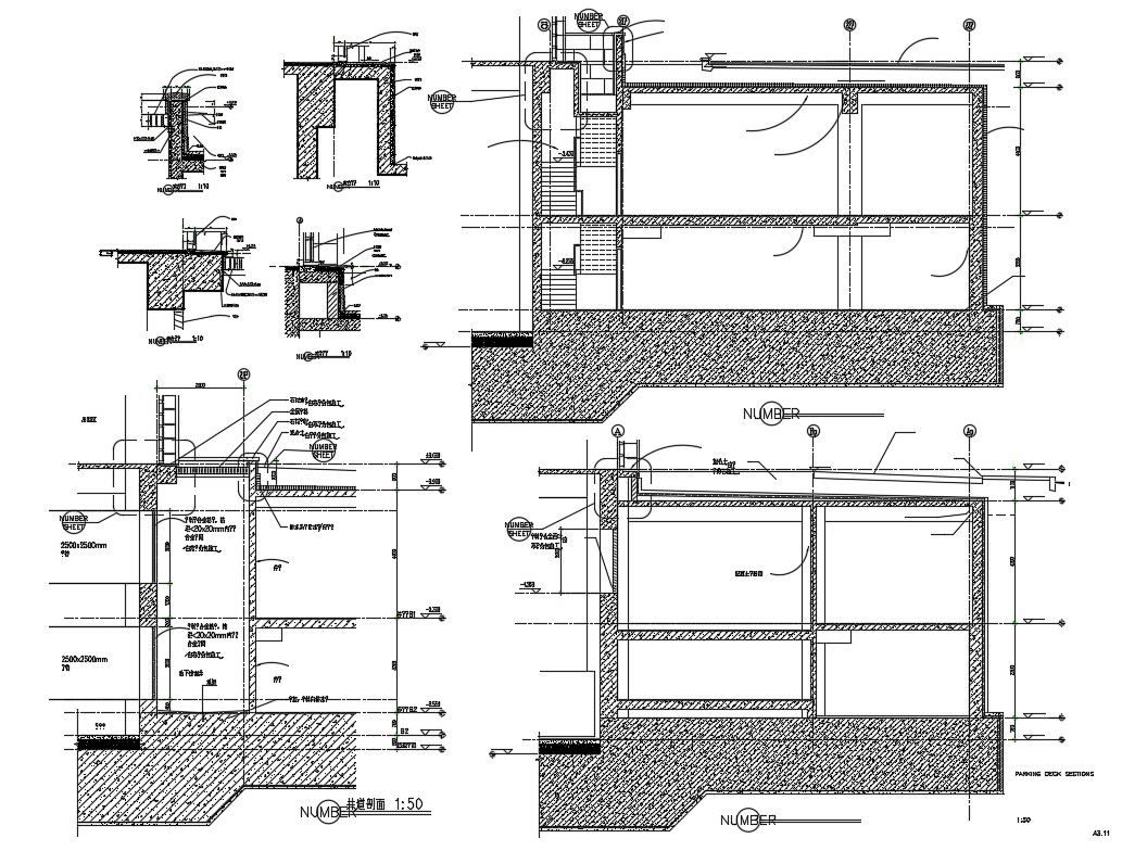
Building Section Details DWG File; this is the building section with wall section detail, texting detail, dimension detail, free CAD file.
File Type:
DWG
File Size:
1.6 MB
Category::
Architecture
Sub Category::
Bungalow House Design
type:
Gold
Uploaded by:
Rashmi
Solanki
View Profile
Download
Add to libary
find Latest
Related
Files