LOGIN
HOME
CATEGORIES
UPLOAD FILE
PRICING
HOUSE PLAN
ABOUT US
CONTACT US
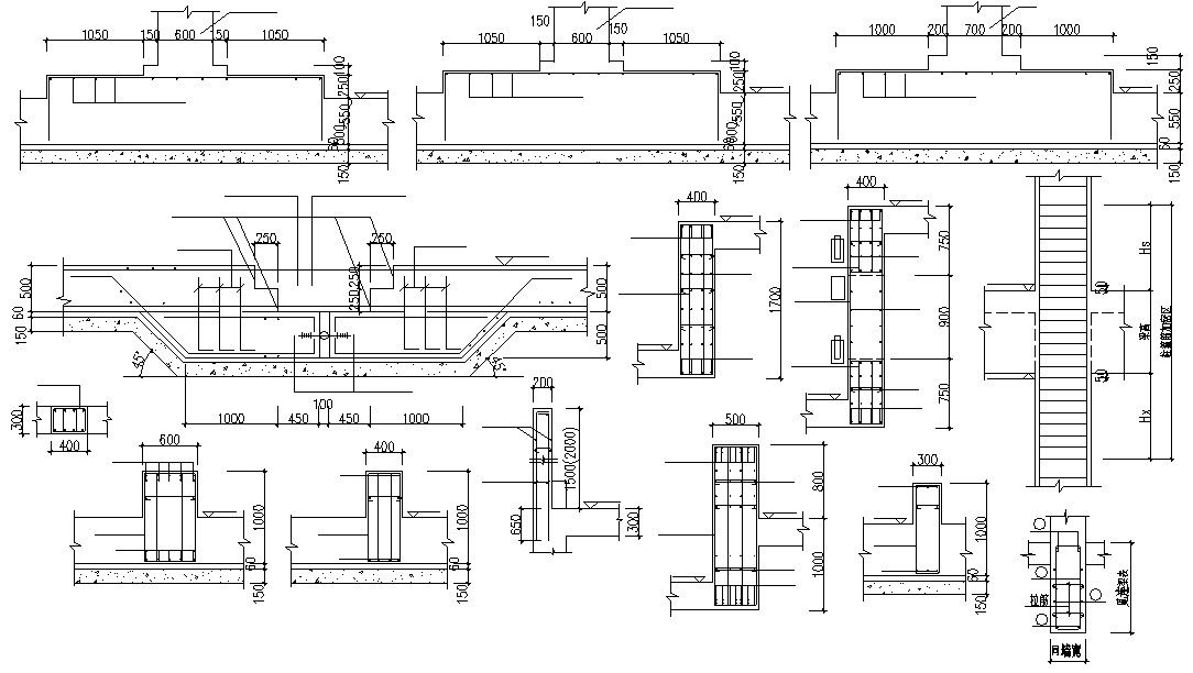
Concrete Reinforcement CAD File
Home
Categories
Construction
Concrete Details
Concrete Reinforcement CAD File
Uploaded by:
Komal
View Profile
View Profile
Description
Concrete Reinforcement CAD File; download free AutoCAD file of concrete reinforcement structure detail with column and beam drawing.
File Type:
DWG
File Size:
610 KB
Category::
Construction
Sub Category::
Concrete Details
type:
Free
Uploaded by:
Komal
View Profile
Download
Add to libary
find Latest
Related
Files