LOGIN
HOME
CATEGORIES
UPLOAD FILE
PRICING
HOUSE PLAN
ABOUT US
CONTACT US
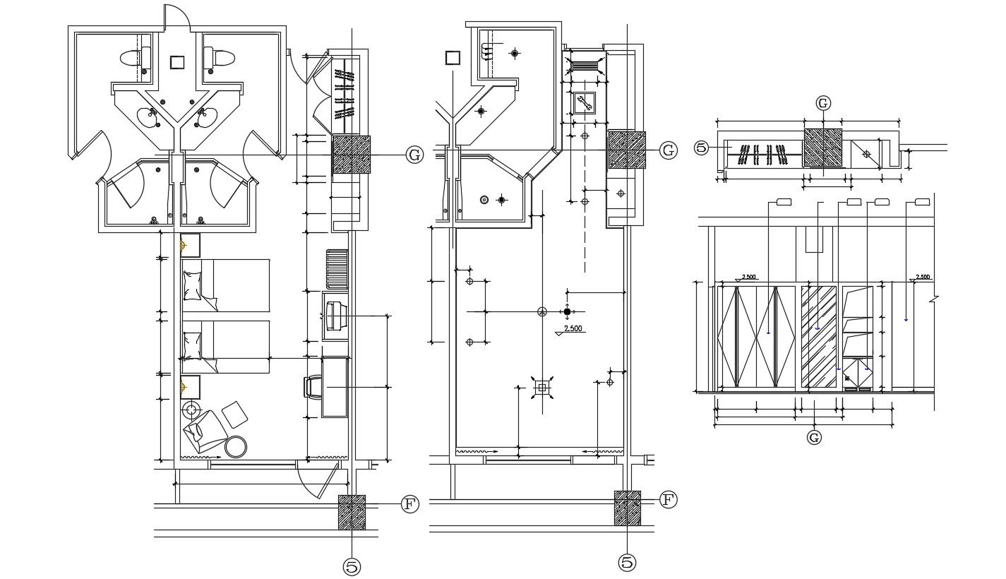
Bedroom With Elevation Design DWG File
Home
Categories
Interior Design
Bedroom Interiors
Bedroom With Elevation Design DWG File
Uploaded by:
Komal
View Profile
View Profile
Description
Bedroom With Elevation Design DWG File; download AutoCAD file of master bedroom furniture layout plan and all side elevation design in AutoCAD format.
File Type:
DWG
File Size:
1.6 MB
Category::
Interior Design
Sub Category::
Bedroom Interiors
type:
Gold
Uploaded by:
Komal
View Profile
Download
Add to libary
find Latest
Related
Files