LOGIN
HOME
CATEGORIES
UPLOAD FILE
PRICING
HOUSE PLAN
ABOUT US
CONTACT US
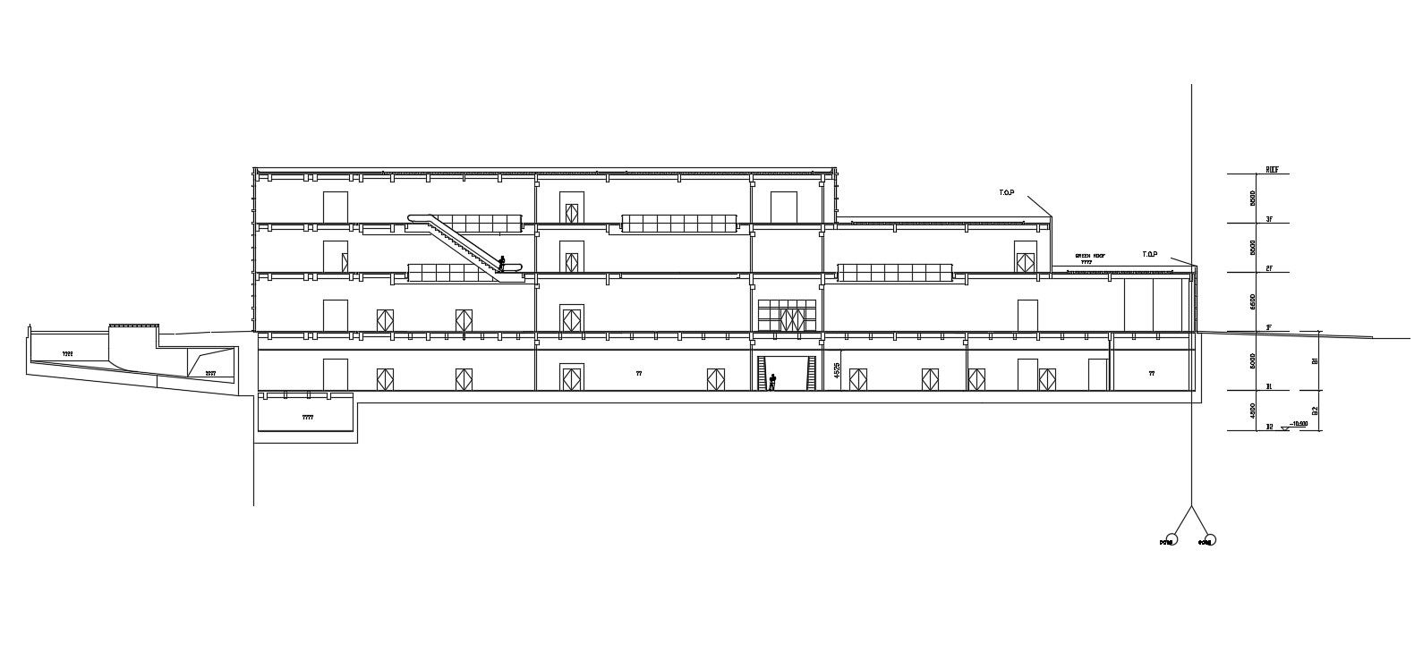
Commercial Building Free Section CAD Drawing
Home
Categories
Architecture
Corporate Building
Commercial Building Free Section CAD Drawing
Uploaded by:
Komal
View Profile
View Profile
Description
Commercial Building Free Section CAD Drawing; download free AutoCAD file of commercial building section drawing with dimension detail in AutoCAD format.
File Type:
DWG
File Size:
619 KB
Category::
Architecture
Sub Category::
Corporate Building
type:
Free
Uploaded by:
Komal
View Profile
Download
Add to libary
find Latest
Related
Files