House Floor Plans Autocad File Download

House Floor Plans Autocad File Download
Profile

Uploaded by:

Rashmi

Solanki

Description
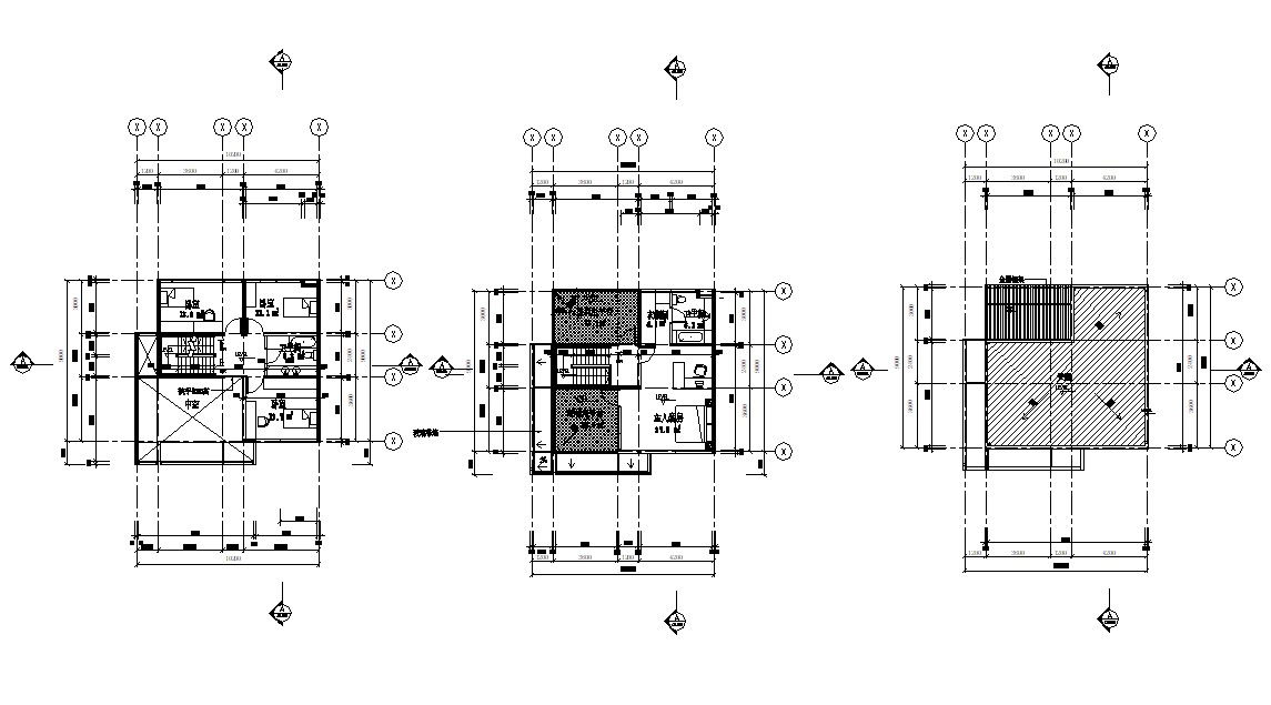
House Floor Plans Autocad File Free Download; this is the simple house floors plan includes bedrooms, toilets, cutouts, terrace plan, free download the DWG file.
Profile

Uploaded by:

Rashmi

Solanki

find Latest

Related Files