Furniture Layout Of Drawing Room And Bed room AutoCAD File Free Download
Description
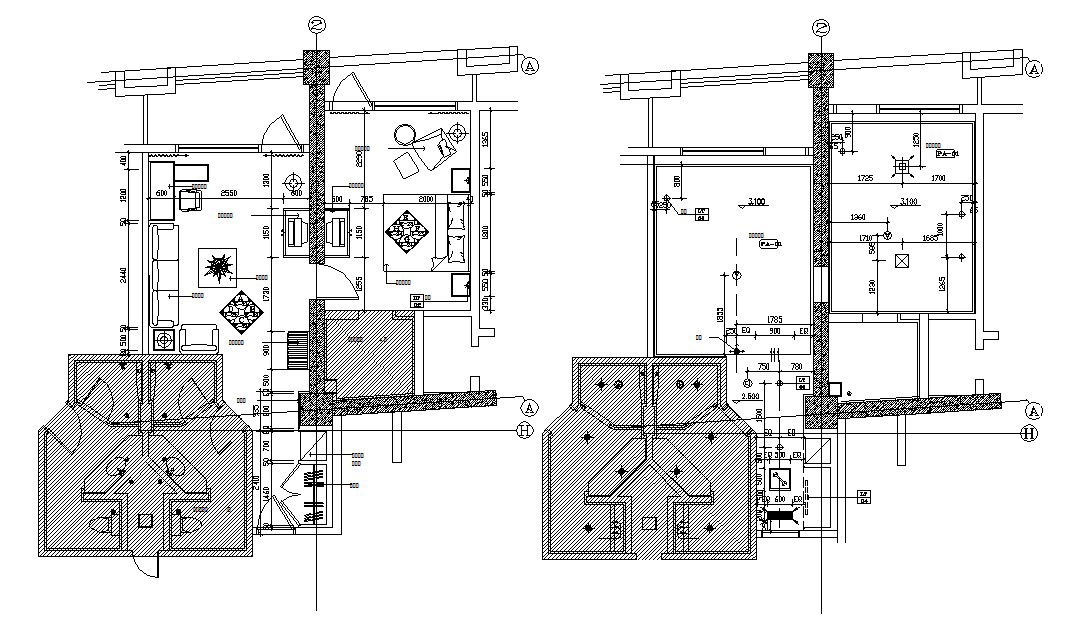
Furniture Layout Of Drawing Room And Bedroom AutoCAD File Free Download; this is the furniture layout plan of the drawing-room and bedroom includes dimension, download the free CAD file.
File Type:
DWG
File Size:
1.6 MB
Category::
Interior Design
Sub Category::
Living Room Interior Design
type:
Free
Uploaded by:
Rashmi
Solanki

