Commercial Building Floor Plan With Working AutoCAD File Free Download
Description
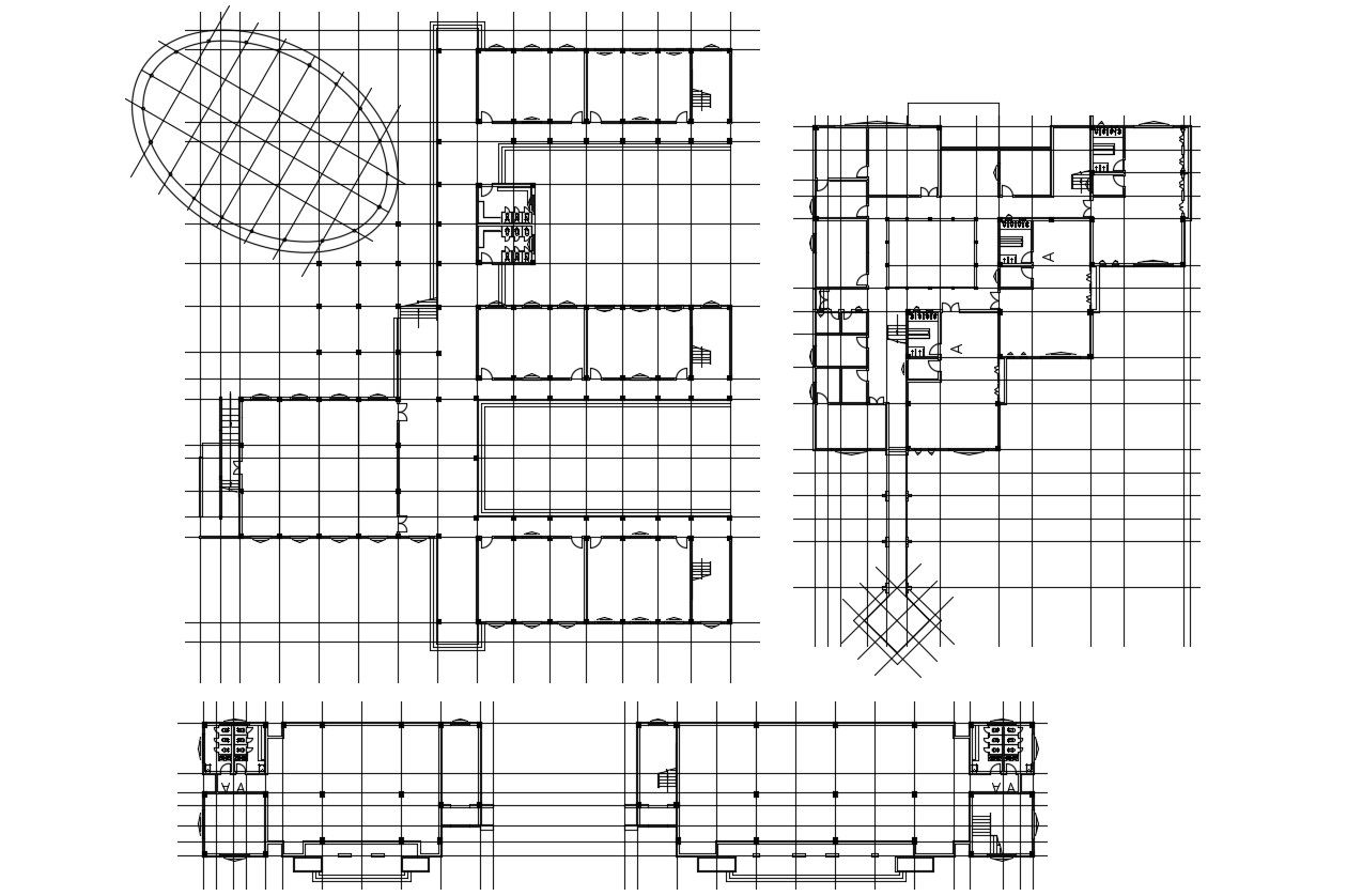
Commercial Building Floor Plan With Working AutoCAD File Free Download; this is the commercial building floor plans with the centerline details, toilets, and stairs details, in DWG file free.
Uploaded by:
Rashmi
Solanki

