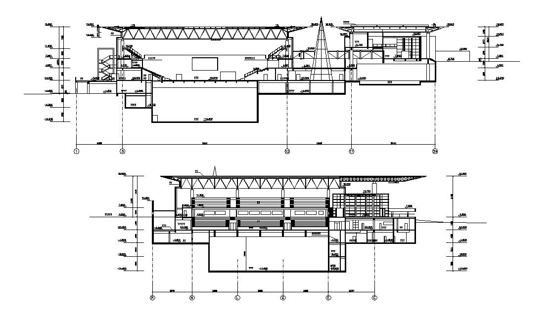
Truss Section Of Stadium with structure Design AutoCAD File Free Download
Description
Truss Section Of Stadium with structure Design AutoCAD File Free Download; this is the truss roof section of the stadium with a centerline, working drawing, texting, huge roof detail in CAD format.
Uploaded by:
Rashmi
Solanki

