LOGIN
HOME
CATEGORIES
UPLOAD FILE
PRICING
HOUSE PLAN
ABOUT US
CONTACT US
Garden Automation Design Free DWG File
Home
Categories
Landscape
Garden Design
Garden Automation Design Free DWG File
Uploaded by:
Komal
View Profile
View Profile
Description
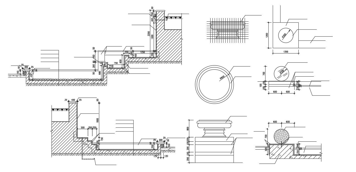
Garden Automation Design Free DWG File; download free AutoCAD file garden CAD drawing includes flower planter and concrete steps with dimension detail.
File Type:
DWG
File Size:
90 KB
Category::
Landscape
Sub Category::
Garden Design
type:
Free
Uploaded by:
Komal
View Profile
Download
Add to libary
find Latest
Related
Files