LOGIN
HOME
CATEGORIES
UPLOAD FILE
PRICING
HOUSE PLAN
ABOUT US
CONTACT US
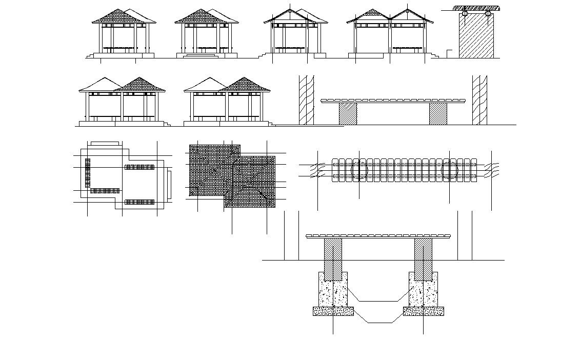
Gazebo Shade design AutoCAD Drawing Download
Home
Categories
Landscape
Garden Automation
Gazebo Shade design AutoCAD Drawing Download
Uploaded by:
akansha
ghatge
View Profile
View Profile
Description
Gazebo shade elevation design that shows gazebo roof plan detail and gazebo different sides of elevation, download CAD file for free.
File Type:
DWG
File Size:
377 KB
Category::
Landscape
Sub Category::
Garden Automation
type:
Free
Uploaded by:
akansha
ghatge
View Profile
Download
Add to libary
find Latest
Related
Files